关于我们
ABOUT
设计作品
WORKS
新闻资讯
NEWS
媒体合作
MEDIA
加入团队
JOIN
联系我们
CONTACT
首页
>
设计作品
> 餐饮空间
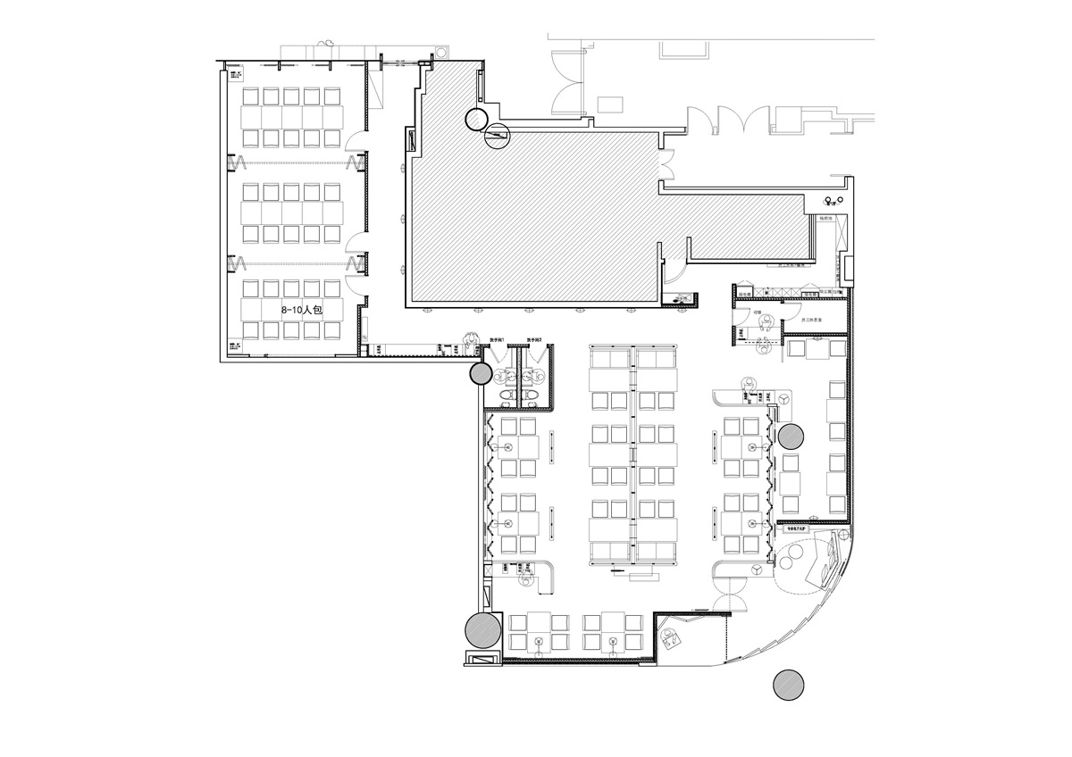
莫舍
营业面积:
400㎡
完成时间:
项目地址:
湖南省长沙市九龙仓国金中心L317B
项目介绍:
这是一家专注于做定制,
中餐西用的餐厅。
▲ 入口的布局呈现曲径通幽的设计理念,甫踏入餐厅即可见艺术家为莫舍定制的以流淌的湘江为题材的漆画工艺屏风。分割嘈杂的环境与优雅的室内。
▲ 进入餐厅,从等候区到就餐区最后通过悠长的走道到达包间区。无一不渗透着华丽但又高雅的气息。
▲ 高耸的空间中大面积深色木面打底,缝隙中展示着店主喜欢搜集的白色瓷瓶,空中的吊灯更像是漫天的星辰,镜面的反射,随着背景音乐的街拍,有序的变化着。
▲ 走过幽静的通道,端景的一抹蓝色更是点睛之笔。包间采用随意组合的形式,满足业主承接各种小型规模的活动或者酒会。
就是莫舍,一间低调但又华丽的餐厅,向每位来这里的食客传达出精致、高定的理念探寻生活中的仪式感。
主要用材:
灰色木面 紫铜色金属 白色石材 浅色墙纸
推荐作品
RECOMMEND
码头故事
玖号·扒房餐吧
苏州喜粤8号
夯食料理(世茂广场店)
相关新闻:
好的餐饮设计如何提高餐厅的市场竞争力呢?
餐厅设计的关键在于门头的设计和主题的设计
餐饮设计不再是简单的排列组合,而是追求一种整体美
餐饮空间设计的概念和主要特征有哪些?
餐饮设计的三个原则是什么?有哪些设计要点?
餐厅设计要满足什么要求,如何带来不错效果
餐饮设计机构多不多,怎样选择合适机构
餐厅设计中怎样抓住特色才能脱颖而出
足浴设计时怎样才能满足高层次人群的需求
餐饮设计中的哪些事项需要注意
COPYRIGHT 2003-2017 上瑞元筑设计有限公司 版权所有 |
苏ICP备17048299号-1
苏公网安备 32021102000327号
技术支持:
无锡网站建设
XML
HTML